| NIVEAU | PIÈCE | SURFACE |
- Ref 73023736
- Ref 508
- Type Appartement
- Ville ANNECY
- Pièces 4
- Chambres 3
- Surface 85 m²
- Terrain NC
- Prix :
319 000 € *
Annecy, proche du centre ville, des commerces et des écoles.
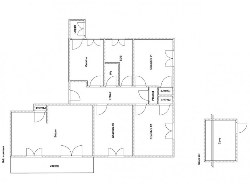
Appartement de 85 m2 au calme, composé d'un grand séjour très lumineux avec balcon donnant sur le parc de la résidence, d'une cuisine séparée avec cellier, de trois chambres ainsi qu'une cave.
- electricité refaite à neuf dans la cuisine et salle de bains.
Local à vélos et places de stationnement privatives pour la résidence.
L'isolation et le ravalement de façade effectués en 2019.
Ce bien est actuellement loué jusqu'en mars 2028.
Idéal pour investissement locatif.
Les informations sur les risques auxquels ce bien est exposé sont disponibles sur le site internet Georisque: georisques.gouv.fr
Bien soumis au statut juridique de la Copropriété. Nb de lots : 67. Charges annuelles de copropriété (Montant moyen annuel quote-part du budget prévisionnel vendeur) : 2 532 €. Pas de procédure en cours.
Surface CARREZ : 85.46 m²
Honoraires TTC charge vendeur Les informations sur les risques auxquels ce bien est exposé sont disponibles sur le site internet Georisque: georisques.gouv.fr
Bien soumis au statut juridique de la Copropriété. Nb de lots : 67. Charges annuelles de copropriété (Montant moyen annuel quote-part du budget prévisionnel vendeur) : 2 532 €. Pas de procédure en cours.
Surface CARREZ : 85.46 m²
Prix moyens des énergies indexés au 01/01/2021 (abonnement compris).
Montant estimé des dépenses annuelles d'énergie pour un usage standard : entre 870 € et 1 220 € par an.
Prix TTC et Honoraires à charge vendeur TTC
Notre barème d'honoraires
* Honoraires charge vendeur.

Montant estimé des dépenses annuelles d'énergie pour un usage standard: entre 870,00€ et 1 220,00€ par an.
Prix moyen des énergies indexés au 01/01/2021 (abonnement compris)










